Pronájem bytu 2+1
Pronájem bytu 2+1
Ulice K Trati, Veselí nad Lužnicí, Jihočeský kraj
Pronajato
Pronajato
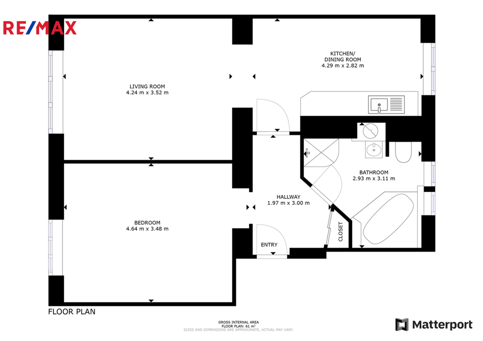
Nabízím dlouhodobý pronájem bytu 2+1, 57 m2 + 2 x sklep, Veselí nad Lužnicí II.
Byt se nachází ve vyvýšeném 1.N.P. z 3 v cihlovém domě o 6 jednotkách.
Byt je vybaven kuchyňskou linkou a vestavnou skříní v předsíni. V koupelně je nový sprchový kout, nový bojler pro ohřev vody, nové umyvadlo se skříňkou (vše z roku 2023).
V bytě jsou nová topná tělesa, instalována v roce 2023. V ložnici zcela renovovaná podlaha z dřevěných parket, v obýváku a kuchyni je kvalitní vinylová podlaha.
Poplatky za služby, elektřinu a plyn - dle vlastní spotřeby..
K nastěhování po dohodě.
Nepřehlédněte 3D virtuální prohlídku (viz výše), kde si můžete byt projít před osobní prohlídkou.
Pokud vás byt zaujme, kontaktujte mě, prosím, na telefonním čísle nebo vyplňte formulář níže a naplánujeme osobní prohlídku bytu.
Poznámka: pronajímající si vyhrazuje právo vybrat nájemce na základě jím zvolených kritérií.











